Развернуть карту

Цена: 14 500 000 руб. | 192 209 $ | 164 278 €

Автор: Олег Анатольевич

+7 (967) 138-56-67

Изменено: 01 окт 2025, 06:43:53

Общие сведения:

Характеристики:

  • Комнат 4
  • Площадь земельного участка, соток7.00
  • Общая площадь, м² 126.5
  • Количество этажей 1

Продажа дома, Бородино, Дмитровский район

Идеальный дом в Дмитровском районе, с программой «Семейная ипотека» !

Вероятно, Ваши поиски окончены!

Вашему вниманию предлагается НОВЫЙ ОДНОЭТАЖНЫЙ ДОМ площадью 102,4 кв.м. в живописнои поселке БОРОДИНО
Дмитровского района, расположенного всего в 3 минутах от центра города Дмитров. Это идеальное место для
спокойной и комфортной жизни за городом, при этом с близостью ко всей необходимой городской инфраструктуре.

ОСНОВНЫЕ ХАРАКТЕРИСТИКИ ДОМА:
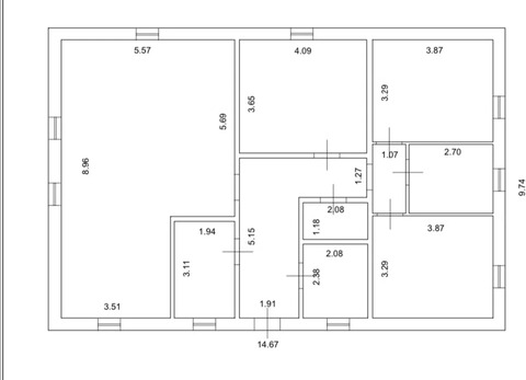
- ЗАСТРОЙКА: Площадь застройки составляет 165,47 кв.м., общая площадь дома 102,4 кв.м., из которых жилая
площадь – 89 кв.м.
- ФУНДАМЕНТ: надёжный свайно-ростверковый.
- СТЕНЫ И ПЕРЕГОРОДКИ: выполнены из пенобетонных блоков с утеплением.
- КРЫША: прочная металлочерепица Grand Line.
- ОКНА: ПВХ VEKO, ламинированные снаружи для улучшения внешнего вида и теплоизоляции.
- ИНЖЕНЕРНЫЕ СИСТЕМЫ: стяжка пола — 17 см, предусмотрены теплые полы и розетки в каждой комнате.
- ПЛАНИРОВКА:аздельные комнаты + кухня-гостиная, 2 санузла, бойлерная и гардеробная.

КОММУНИКАЦИИ ДЛЯ КОМФОРТНОЙ ЖИЗНИ:
- ЭЛЕКТРИЧЕСТВО: мощность 15 кВт (3 фазы).
- ГАЗ: в доме.
- ВОДОСНАБЖЕНИЕ: собственная скважина глубиной 55 метров.
- КАНАЛИЗАЦИЯ: септик Топаз.
- ИНТЕРНЕТ: высокоскоростной оптоволоконный доступ.
- БЕЗОПАСНОСТЬ: домофон и система видеонаблюдения.

УЧАСТОК И ОКРУЖЕНИЕ:
- Дом располагается на участке 7,4 сотки.
- Кадастровый номер 50:04:0100503:663,
- Категория земель - земли населенных пунктов,
- Разрешенное использование — индивидуальное жилищное строительство.
- На участке сделана эффективная дренажная система.
- Забор оборудован ленточным основанием с бетонными столбами по фасаду.

ЛОКАЦИЯ И ИНФРАСТРУКТУРА:
Поселок Бородино стал одним из самых популярных локаций для проживания у жителей Дмитровского района
благодаря своей близости к городу и качественной инфраструктуре. Ваша новая жизнь будет окружена соседями,
которые живут здесь постоянно.

Асфальтированные дороги к поселку регулярно чистятся зимой, обеспечивая круглогодичный доступ.

Не упустите возможность стать владельцем этого уникального дома в Бородино. ПРИОБРЕТИТЕ СВОЙ СОБСТВЕННЫЙ
УЮТНЫЙ УГОЛОК В НЕПОСРЕДСТВЕННОЙ БЛИЗОСТИ ОТ ВСЕХ ГОРОДСКИХ УДОБСТВ И ДОСТОПРИМЕЧАТЕЛЬНОСТЕЙ ДМИТРОВА.

Звоните прямо сейчас и узнайте больше о предлагаемой недвижимости!

За те же деньги

×