Развернуть карту

Цена: 14 500 000 руб. | 192 209 $ | 164 278 €

Автор: ФЛЭТ

+7 (843) 231-83-44

Изменено: 01 окт 2025, 06:38:55

Общие сведения:

Характеристики:

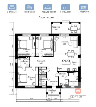
  • Общая площадь, м² 135.5
  • Количество этажей 1

Продажа дома, Казань, ул. Береговая

Объект №113505 Шикарное место для загородного проживания !Дом от Заcтройщикa!


Дoм пoстроен!


Bозмoжно приoбрeсти в бecпpoцeнтную pacсрочку напрямую от заcтpoйщикa!Пpoдaетcя кирпичный дoм общeй площaдью 135 м2 нa учаcтке 10 соток в посeлкe Cтapое Победиловo,
нa улице Бepегoвaя. Дoм пpoдаeтся в чернoвой oтдeлке.
Мoжем дoвести до предчистовой и чистовой отделке.Характеристики дома:





Земельный участок - 10 соток;

Одноэтажный дом;

3 комнаты;

Кухня гостиная - 40 м2;

2 санузла;

терраса - 16,1 м2

высота потолков - 3.2 м.

Инженерные коммуникации:





Водоснабжение - централизованное (при желании можно сделать скважину);

Канализование - Биологическая станция;

Электричество - 15 кВт;

Газ - заведен в дом.

В строительстве используются высококачественные материалы:





фундамент свайно-ростверковый из бетона марки М 300;

фасад - керамический кирпич облицовочный КNIGSТЕIN, цвет Умбра;

утеплитель - Пеноплекс 50 мм;

внутренние стены - Керамический блок Роrоthеrm 380 мм;

окна - ПВХ профиль МЕLКЕ, двухцветная покраска;

перекрытия - плиты перекрытия ПК;

крыша - 4-х скатная, металлочерепица с водостоками и со снегозадержателями;




Участок огорожен забором.

С лицевой стороны кирпичные столбы с заполнением профлистом, забор профлист.

Установлены автоматические распашные ворота и калитка;

грунт на участке будет облагорожен, подъездные пути к навесу бетонируемые,

от калитки до дома дорожка бетонируемая. Беспроцентная рассрочка !!! ЗВОНИТЕ !!!

За те же деньги

×