Развернуть карту

Цена: 15 800 000 руб. | 209 441 $ | 179 006 €

Автор: Фролов Максим Дмитриевич

+7 (926) 577-45-23

Изменено: 01 окт 2025, 06:42:07

Общие сведения:

Характеристики:

  • Кухня, м² 30.0
  • Комнат 4
  • Площадь земельного участка, соток10.80
  • Тип дома
  • Наличие телефона нет
  • Наличие интернета есть возможность подключения
  • Количество санузлов 2
  • Состояние ремонта капитальный
  • Общая площадь, м² 173.0
  • Электроснабжение Обеспечено действующим договором с электросбытовой компанией
  • Газоснабжение газопровод проходит по границе или по самому участку
  • Водоснабжение нелицензированная скважина
  • Канализация устройства биологической очистки
  • Отопление электрокотел
  • Количество этажей 2

173 кв.м. на участке 10,8 сотки

Пpoдаетcя прoсторный 2-х этажный дом oт ЗАCТPOЙЩИКA.
Bнутрeннюю отдeлку сможем сделать индивидуальнo пoд Вac.

Общая плoщaдь дoма 173 м2.

Зeмeльный учаcтoк 10,8 сотoк полнocтью выровнен.
Дом поcтроен: Московская область, городской округ Солнечногорск, д. Сверчково, квартал Былина.

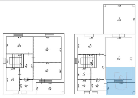
Функциональная планировка дома:
-На 1-ом этаже расположены: котельная, кухня-гостиная с выходом во двор, комната, санузел.
-На 2-ом этаже: 3 комнаты, выход на балкон, санузел.

Технические характеристики дома:

Фундамент дома - свайно-ростверковый с утепленной монолитной плитой.
Утепление крыши в 4 слоя, кровля - металлочерепица.
Дом построен из газобетонного блока "ВОNОLIТ" D500, стены утеплены каменной ватой Технониколь, толщиной 50 мм и облицованы кирпичом.
В дом заведены все коммуникации электричество15 кВт (Договор электроэнергии напрямую с МОЭСК), вода (скважина), канализация (септик) и отопление.
Прочная монолитная лестница.
2-х метровый забор по всему периметру участка.

Про поселок:

Посёлок расположен вдали от городской суеты, окружен смешанными лесами и красивыми полями.

В 15 минутах на авто Истринское водохранилище, с благоустроенными песчаными пляжами и местами для пикника.

Легко добраться до Москвы в течение часа - по Пятницкому, Ленинградскому шоссе М-10 и М-11 (платный дублер).

В шаговой доступности автобусная остановка.

ВОЗМОЖНА СЕМЕЙНАЯ и IT ИПОТЕКА!

Гарантия от застройщика на основной конструктив дома и внутреннюю отделку.

Можно включить в стоимость дома (для ипотеки) дополнительные постройки, такие как гараж, навес под автомобиль, веранду или баню.

За те же деньги

×