Развернуть карту

Цена: 14 990 000 руб. | 198 704 $ | 169 829 €

Автор: Балашова Наталья Геннадьевна

+7 (926) 503-00-10

Изменено: 01 окт 2025, 06:36:55

Общие сведения:

Характеристики:

  • Кухня, м² 17.5
  • Комнат 6
  • Площадь земельного участка, соток16.50
  • Тип дома Каркасно-щитовой
  • Наличие интернета подключен
  • Количество санузлов 2
  • Мебель современная мебель
  • Состояние ремонта капитальный
  • Общая площадь, м² 164.8
  • Электроснабжение Обеспечено действующим договором с электросбытовой компанией
  • Газоснабжение газопровод проходит по границе или по самому участку
  • Водоснабжение нелицензированная скважина
  • Канализация устройства биологической очистки
  • Отопление электрокотел
  • Количество этажей 2

Продается дом 164,8 кв.м. и участок 16,5 соток в д.Богачево

Продается дом 164, 8 кв. м. и участок 16, 5 соток в д. Богачево (Одинцовский г. о. ), 40 км. от МКАД по Можайскому шоссе.
Дом общей площадью – 164, 8 кв. м., 2-х этажный, дом 2021 года постройки, построен по индивидуальному проекту. Прекрасный, уютный и светлый дом!
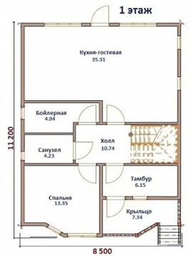
На первом этаже: прихожая 6 кв.м, кухня-гостевая 35 кв.м., комната 13 кв.м., один сан.узел и котельная.
На втором этаже: 4 спальни (19+16+13+13) кв.м., и второй сан.узел.
Дом строился под себя. Выполнен из качественных материалов. Дизайнерский ремонт. Фундамент дома - ж/б сваи. Дом выполнен по каркасно-брусовой технологии. Утеплен по периметру. Большие светлые окна, красивый вид на лес. Большая часть мебели остается новым хозяевам. Установлен функциональный кухонный гарнитур со встроенной техникой по дизайн-проекту. Есть дополнительный выход с кухни на задний двор. Установлены 2 кондиционера.
Коммуникации: заведено электричество 15 киловатт, своя независимая скважина 80 метров, установлена система очистки воды и биологическая станция, отопление электрическое, разведены батареи по всему дому. Установлен водяной бойлер для большой семьи. Подключен спутниковый интернет. Газ по границе. Созданы все удобства для жизни.
Участок 16,5 соток прямоугольной формы, угловой. С категорией земли: земли населенных пунктов (с пропиской), вид разрешенного использования: для иных видов жилой застройки, для индивидуального жилищного строительства.
Участок огорожен забором, стоят автоматические ворота.
На участке имеется большой хозблок для хранения садового инвентаря и хозяйственных вещей. Посажены плодово-ягодные и садовые деревья. Большая парковочная зона из брусчатки для автомобилей.
Дом находится в закрытом коттеджном посёлке с автоматическими воротами. Вокруг природа. Полная тишина и отсутствие навязчивых соседей. Прекрасный вид на лес. В 10 минутах пешком живописные места и очень красивые озера. Летом можно купаться и ловить рыбу. В посёлке асфальтированные дороги с круглогодичным подъездом.
Удобное расположение, со всей необходимой инфраструктурой в 2-х километрах: школы, детский сад, дом отдыха Покровское, церковь, сетевые магазины и пункты выдачи интернет-товаров.
Хорошая транспортная доступность: до ж/д ст.Голицыно 20 мин. - маршрутка, до ж/д ст. Сушкинская - 10 мин. маршрутка.
Участок и дом в собственности. Один взрослый собственник. Свободная продажа-переезд. Подходит под ипотеку, поможем одобрить, обращайтесь. Разумный торг обсуждается
Звоните, дом ждёт именно Вас!

За те же деньги

×