Развернуть карту

Цена: 8 100 000 руб. | 108 287 $ | 91 378 €

Автор: Аллаяров Эльмир

+7 (962) 547-70-20

Добавлено: 01 окт 2025, 08:45:02

Общие сведения:

Характеристики:

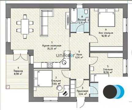
  • Комнат 3
  • Площадь земельного участка, соток7.50
  • Наличие телефона нет
  • Наличие интернета подключен
  • Общая площадь, м² 110.0
  • Электроснабжение Обеспечено действующим договором с электросбытовой компанией
  • Газоснабжение нет
  • Водоснабжение центральное водоснабжение
  • Канализация есть
  • Отопление есть
  • Количество этажей 1

Продажа дома, Русский Юрмаш, Уфимский район, ул Кустарная

Объявление №41409. Ваш новый дом ждет Вас в с. Русский Юрмаш!
Продается великолепный дом площадью 110 кв.м. с получистовой отделкой по цене всего.
Описание дома:

Площадь дома: 110 кв.м.
Площадь участка: 7,5 соток
Этажность: 1 этаж
Материал стен: кирпич, базальтовый утеплитель, облицовочный кирпич.
Фундамент: свайно-ростверковый
Кровля: металлочерепица
Коммуникации: электрическое отопление, электричество 380 и 220 Вт, водопроводе колодец, канализация шамбо.
Отделка: чистовая

Планирование:

Просторная кухня-гостиная с выходом на террасу
3 комнаты
Раздельный санузел
Котельная

Удобства и инфраструктура:

Городские электросети
Высокоскоростной интернет
Возможность подключения газа
Асфальтированные подъездные пути
Качественное уличное освещение
В доступности магазины, школы, детские сады и другие объекты.

Преимущества:

Спокойное и уютное место для жизни
Экологически чистый район
Удобное транспортное сообщение с городом
Возможность оформить семейную и сельскую ипотеку

Не упустите шанс стать этим замечательным домом, идеально подходящим для комфортного проживания всей семьи. Свежий воздух, живописные виды и удобная инфраструктура – все это ждет Вас в с. Русский Юрмаш!
Цена огонь
Звоните и записывайтесь на просмотр! Мы работаем без выходных и готовы ответить на все Ваши вопросы.
Ваш новый дом ждет Вас!

За те же деньги

×