Развернуть карту

Цена: 5 300 000 руб. | 70 854 $ | 59 790 €

Автор: Оксана Макарова

+7 (967) 310-98-91

Изменено: 01 окт 2025, 06:43:34

Общие сведения:

Характеристики:

  • Площадь земельного участка, соток4.50
  • Общая площадь, м² 65.2
  • Электроснабжение Обеспечено действующим договором с электросбытовой компанией
  • Газоснабжение газ низкого давления на участке
  • Водоснабжение центральное водоснабжение
  • Канализация есть
  • Отопление есть
  • Количество этажей 1

Продажа дома, Абинск, Абинский район, ул. Тищенко

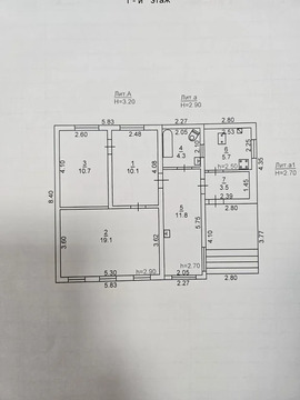
Продается уютный дом площадью 65,2 кв.м., расположенный на участке в 4,5 сотки. Высокий цоколь обеспечивает надежную защиту от влаги и холода. Внутри выполнен качественный ремонт, создающий атмосферу комфорта и уюта.
Планировка включает в себя две изолированные комнаты, где можно уединиться и отдохнуть, а также одну проходную комнату, которая может служить гостиной или столовой. Удобная котельная позволит вам самостоятельно регулировать температуру в доме и экономить на отоплении. Совмещенный санузел оборудован всей необходимой сантехникой.
К дому пристроен гараж, что является большим плюсом для автовладельцев – машина всегда будет под рукой и защищена от непогоды.
Расположение дома очень удачное – рядом находятся школа № 4, детские сады, поликлиника и казачий рынок. Все необходимые объекты инфраструктуры находятся в шаговой доступности, что делает жизнь в этом доме максимально комфортной и удобной.
Не упустите возможность приобрести этот прекрасный дом! Звоните прямо сейчас, чтобы договориться о просмотре и получить ответы на все интересующие вас вопросы.

ID объекта: 1009456

За те же деньги

×