Развернуть карту

Цена: 6 500 000 руб. | 86 897 $ | 73 328 €

Автор: Богатырев Олег

+7 (495) 132-07-66

Изменено: 01 окт 2025, 06:43:23

Общие сведения:

Характеристики:

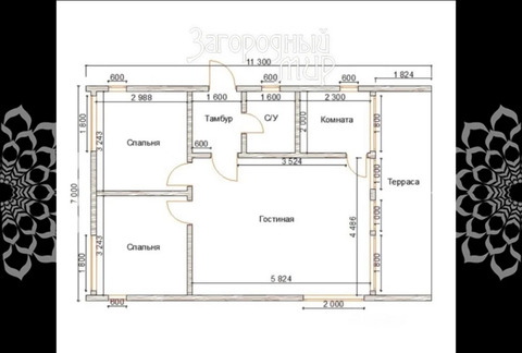
  • Комнат 5
  • Площадь земельного участка, соток9.00
  • Тип дома Каркасно-щитовой
  • Наличие телефона нет
  • Наличие интернета нет
  • Количество санузлов 1
  • Мебель нет
  • Состояние ремонта евро-ремонт
  • Общая площадь, м² 84.0
  • Электроснабжение Обеспечено действующим договором с электросбытовой компанией
  • Газоснабжение газ низкого давления на участке
  • Водоснабжение нелицензированная скважина
  • Канализация септики
  • Отопление электрокотел
  • Количество этажей 1

Продам дом, Рогачевское шоссе, 50 км от МКАД

Лот 69113. Космынка. Дом в новом охраняемом коттеджном поселке "Космынка светлая". Современный каркасный дом, качественно утеплён (построен профессиональной строительной компанией с учётом всех СНИПов и нормативов), внешне отделан профлистом с доборными элементами RAL 7024 + лиственница, площадью 84 кв.м с отделкой «под ключ» и возможностью проживать круглый годеревня

Фундамент-винтовые сваи, большие панорамные окна.
В доме уютная гостиная с выходом на большую террасу, 2 спальни, кабинет, холл, с/у. Все полы в доме с подогревом и удаленным доступом управления по wi-fi.

Участок 8,5 соток (угловой, возможно организовать заезд с двух улиц): хоз.блок, зона барбекю, фасадное освещение; выполнены ландшафтные работы, растут шикарные берёзы.
Коммуникации: Электричество 15 кВт, своя скважина, биосептик.
В поселке организован оптоволоконный интернет и видео наблюдение.

Отличный круглогодичный подъезд, въезд через шлагбаум. Почти все соседи построились, многие живут круглый годеревня В радиусе пяти км., вся современная инфраструктура (магазин, школа, д/сад больница, банк). В шаговой доступности остановка общественного транспорта. Совсем рядом грибной лес, река Кимерша и большое чистое озеро (на месте старого карьера)

Безопасность сделки обеспечена высокими стандартами Гильдии Риэлторов Москвы. Все сделки застрахованы АО "АльфаСтрахование".

За те же деньги

×