Развернуть карту

Цена: 14 999 999 руб. | 200 531 $ | 169 218 €

Автор: Александр Владимирович

+7 (930) 785-30-14

Изменено: 01 окт 2025, 06:43:04

Общие сведения:

Характеристики:

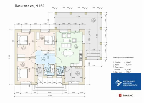
  • Кухня, м² 16.0
  • Комнат 3
  • Площадь земельного участка, соток10.20
  • Тип дома Кирпичный
  • Количество санузлов 2
  • Общая площадь, м² 167.0
  • Количество этажей 1

Продажа дома, Рязанский район, 265

Код объекта: 1553116.
Коттеджный посёлок "Вилланд", ул. Репина.

Готовый коттедж площадью 115,5 + 51,5 кв.м веранда.

Выполнена предчистовая отделка (White Box).

Участок удален от трассы, в окружении соснового леса.

Покупка возможна с применением льготной программы кредитования:

- СЕЛЬСКАЯ ИПОТЕКА", ставка 3%

Земли населенных пунктов, для ИЖС.
Участок ровный, площадь 10,16 сот. с круглогодичным подъездом (асфальт).

Фундамент: ленточный монолитный, армированный.
Стены: блок керамический 380х250х219 мм.
Облицовка: лицевой кирпич BRAER "КЛАДКА LIMITED Риф".
Перегородки: керамический камень 2,1 НФ.
Перекрытие: нулевой цикл - бетонное; 1 этаж - деревянное.
Кровля: металлочерепица;
Окна: ПВХ, двухкамерный стеклопакет, ламинирование с внешней стороны.
Входная дверь: металлическая.
Коммуникации: электричество, газ, вода и канализация (2 колодца) - введены в дом.

КП "Вилланд" — это система комфортной жизни и приятного отдыха, где вы и ваши дети будут с большим интересом и любопытством проводить время.

Инфраструктура посёлка:
Асфальтированные дороги,
Ландшафтный дизайн,
Территории для отдыха,
Прогулочные дорожки и аллеи,
Футбольные и волейбольные игровые площадки,
Зона Workout c тренажерами,
Охраняемая территория 24/7.

Соседи рядом уже построили дома, подъезд до участка асфальтовая крошка/грунт. На участке растут сосны.

Помощь с продажей Вашей недвижимости и кредитованием!

Рядом населенные пункты: с. Мурмино, с. Дубровичи. с. Поляны, с. Агро-Пустынь, п. Солотча, с. Казарь.

Не упустите свой шанс стать обладателем дома вашей мечты!

Мы гарантируем безопасную сделку и юридическую поддержку нашим Клиентам.

Более 33 лет на рынке недвижимости! Клиенты УК «Центральное агентство недвижимости» могут быть уверены в каждой сделке!

Звоните и приезжайте на просмотр, ответим на Ваши вопросы!

За те же деньги

×