Развернуть карту

Цена: 8 350 000 руб. | 111 629 $ | 94 198 €

Автор: ФЛЭТ

+7 (843) 231-83-44

Изменено: 01 окт 2025, 06:43:08

Общие сведения:

Характеристики:

  • Общая площадь, м² 90.5
  • Водоснабжение центральное водоснабжение
  • Канализация есть
  • Отопление есть
  • Количество этажей 1

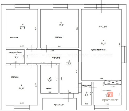
Продажа дома, Ильинский, Пестречинский район, ул. Осиновая

Объект №114973 Твой идеальный дом среди сосен! В продаже СОВРЕМЕННЫЙ дом


Проходит все виды ипотеки + возможна оплата по НДС!
Просторный дом с уникальной планировкой и вторым светом, что создаёт ощущение простора и уюта.
Удобное расположение — 15 минут до развязки М7 / Вознесенский тракт, полностью асфальтированные подъездные пути, освещение трассы в тёмное время суток.
В доме:
3 изолированные спальни;
просторная кухня-гостиная 26,5 м со вторым светом;
отдельные котельная и санузел;
гардеробные и хозяйственные помещения;
высота потолков 3,1 м;
качественные окна и входная дверь с терморазрывом.
Коммуникации уже подключены:
газ (отопление газовым котлом),
электричество,
вода (скважина 85 м),
канализация (септик 3 кольца по 1,5 м).
Земельный участок — 7,4 сотки, в окружении соснового леса. На территории растут молодые сосны, поэтому будущие жильцы смогут наслаждаться свежим воздухом и ароматом хвои прямо у себя на участке.


Звоните, чтобы записаться на просмотр и лично оценить атмосферу дома!

За те же деньги

×