Развернуть карту

Цена: 9 999 999 руб. | 133 687 $ | 112 812 €

Автор: ФЛЭТ

+7 (843) 231-83-44

Изменено: 01 окт 2025, 06:36:50

Общие сведения:

Характеристики:

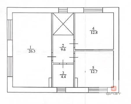
  • Общая площадь, м² 135.0
  • Количество этажей 2

Продажа дома, Казань, ул. Заречная (Большие Дербышки)

Объект №112402 Готовый дом в Советском районеЗабудьте о городской суете! Предлагаем уютный и просторный дом (135 кв.м) на собственном участке 3,8 соток в живописном поселке Большие Дербышки. Идеальное место для комфортной семейной жизни и отдыха на природе!


Что вас ждет:


* Просторный первый этаж: Светлая и функциональная кухня-студия – сердце дома, станет местом сбора всей семьи. Выход на уютную террасу позволит наслаждаться свежим воздухом и прекрасными видами. Также на первом этаже расположена спальная комната и санузел.


* Комфортабельный второй этаж: Три отдельные спальни обеспечат каждому члену семьи личное пространство и спокойный сон. Дополнительный санузел на втором этаже – залог комфорта и удобства.


* Ровный участок 3,8 соток: идеальное место для отдыха, игр с детьми или организации зоны барбекю. Достаточно места для воплощения ваших ландшафтных фантазий!


Преимущества:


* Удобное расположение: Поселок Большие Дербышки – тихий и спокойный уголок природы, с хорошей транспортной доступностью.
* Современная планировка: Продуманная архитектура и функциональное зонирование создают атмосферу комфорта и уюта.


Не упустите свой шанс приобрести загородный дом вашей мечты!


Звоните прямо сейчас и записывайтесь на показ!

За те же деньги

×