Развернуть карту

Цена: 13 500 000 руб. | 180 478 $ | 152 296 €

Автор: Фролов Максим Дмитриевич

+7 (926) 577-45-23

Изменено: 01 окт 2025, 06:40:10

Общие сведения:

Характеристики:

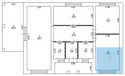
  • Кухня, м² 30.0
  • Комнат 3
  • Площадь земельного участка, соток6.00
  • Тип дома
  • Наличие телефона нет
  • Наличие интернета есть возможность подключения
  • Количество санузлов 2
  • Мебель нет
  • Состояние ремонта капитальный
  • Общая площадь, м² 130.0
  • Электроснабжение Обеспечено действующим договором с электросбытовой компанией
  • Газоснабжение газопровод проходит по границе или по самому участку
  • Водоснабжение нелицензированная скважина
  • Канализация устройства биологической очистки
  • Отопление электрокотел
  • Количество этажей 1

Дом 130 кв.м. в Сверчково

Каменный дом 130 кв.м. на участке 6 соток ИЖС в д. Сверчково, Квартал Былина. 50 км от МКАД по Ленинградскому или Пятницкому шоссе.

Одноэтажный дом на 3 спальни из газобетона под ключ. В доме 3 спальни, два санузла, терраса, кухня-гостиная.

Коммуникации: Электричество 15 кВт, скважина, канализация Топас, теплый пол по всему первому этажу и батареи (электрокотел).

Про поселок: Прекрасный поселок с большой перспективой. Посёлок расположен в живописном месте Подмосковья, окружен лесами, в пешей доступности Истринское водохранилище с пляжами и местами для пикника.
Ближайшая инфраструктура находится в 5 минутах от посёлка. Крупный сетевой магазин "Выстрел", аптека, пункт выдачи OZON/WILDBERRIES. По соседству питомник растений "РусРоза"
В соседнем поселке в 10 минутах от д. Сверчково есть школа и детские сады – детей забирает школьный автобус.
До автобусной остановки можно дойти пешком в течении 5 минут (автобусы ходят регулярно).

&128205;ВОЗМОЖНА ЛЬГОТНАЯ И СЕМЕЙНАЯ ИПОТЕКА!

За те же деньги

×