Развернуть карту

Цена: 1 220 000 руб. | 16 310 $ | 13 763 €

Автор: Алексеев Сергей Юрьевич

+7 (926) 594-03-44

Изменено: 01 окт 2025, 06:41:24

Общие сведения:

Характеристики:

  • Комнат 2
  • Площадь земельного участка, соток7.00
  • Тип дома Каркасно-щитовой
  • Общая площадь, м² 32.0
  • Ближайший населённый пункт Талдом
  • Ближайшая железнодорожная станция Власово
  • Электроснабжение Обеспечено действующим договором с электросбытовой компанией
  • Газоснабжение нет
  • Водоснабжение колодец, колонка, необорудованный родник
  • Канализация септики
  • Отопление есть
  • Количество этажей 2

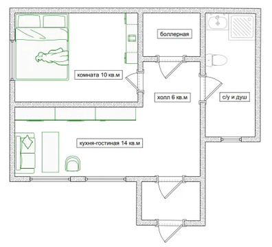
Дача 32 м2 на участке 7 сот.

Продается уютная дача 32 кв. м. на участке 7 сотки в СНТ Тополек Талдомскогорайона.

Дача каркасно-щитовая (утепление 100 мм), дом снаружиобшит вагонкой и покрашен, фундамент блочный, крыша мягкая кровля. В доме удачная планировка: кухня-гостиная 14 кв. м. , комната 10 кв.м., с/у с душем, холл и коридор. Внутри дом обшит вагонкой.

В отдельном строение есть небольшой хозблок.

Земельный участок вид разрешенного использования: для садоводства. На участке расположен дом и хозблок.

Коммуникации: отопление конвектора с умными розетками, электричество 6 кВт, вода колодец (заведен в дом с греющим кабелем водой можно пользоваться зимой). Участок ровный, сухой, огорожен забором. Подъезд к участку круглогодичный. Некоторые соседи живут постоянно.

СНТ Тополек находится в 110 км от МКАД, 8 км от г. Талдом

Спешите записаться на просмотр! Оперативно покажем!

За те же деньги

×