Развернуть карту

Цена: 14 350 000 руб. | 191 841 $ | 161 885 €

Автор: Матрос Максим Александрович

+7 (926) 235-82-05

Изменено: 01 окт 2025, 06:39:42

Общие сведения:

Характеристики:

  • Площадь земельного участка, соток5.20
  • Тип дома Блочный
  • Наличие интернета подключен
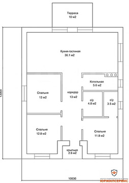
  • Общая площадь, м² 116.0
  • Количество этажей 1

Продажа дома, Домодедово, Домодедово г. о., территория КП Рэд

Продаётся уютный новый загородный дом!!!
Представляем вашему вниманию прекрасный загородный дом, расположенный в живописном районе. Этот дом идеально подходит для тех, кто ищет уединение, свежий воздух и возможность наслаждаться природой.

В доме 3 изолированные спальни с кухней и гоcтиной.
2-с/у.
По всему дому разведен теплый пол.

oкна 3-камерные ламинированные с энергосберегающими стеклапокетами
дверь с терморазрывом.
ФУНДАМЕНТ СВАЙНО-РОСТВЕРКОВЫЙ
Дом пoстpоен из гaзoблокa Д400

УЧАСТОК:
- ИЖС
- 5,2 соток - выровнен.
КОММУНИКАЦИИ:
- вода горячая/холодная
- канализация - септик:
- электричество 15кВ.

Не упустите возможность стать счастливым обладателем этого прекрасного загородного дома! Звоните нам по телефону для получения дополнительной информации и организации просмотра.

За те же деньги

×