Развернуть карту

Цена: 940 000 руб. | 12 567 $ | 10 604 €

Автор: Алексеев Сергей Юрьевич

+7 (926) 594-03-44

Изменено: 01 окт 2025, 06:39:20

Общие сведения:

Характеристики:

  • Комнат 3
  • Площадь земельного участка, соток6.00
  • Тип дома Каркасно-щитовой
  • Общая площадь, м² 50.0
  • Ближайший населённый пункт Талдом
  • Ближайшая железнодорожная станция Власово
  • Электроснабжение Обеспечено действующим договором с электросбытовой компанией
  • Водоснабжение колодец, колонка, необорудованный родник
  • Канализация выгребная яма
  • Отопление есть
  • Количество этажей 2

Дача 50 м2 на участке 6 сот.

Продается уютная дача, расположенная по адресу: Талдомский р-н СНТ «Рассвет-2»

100км от МКАД, 12км от г. Талдом, 36км от г. Дмитров.

На участке 6 сот расположены:

Основной дом 50 кв. м.

Летняя кухня.

Беседка.

Летний душ и туалет.

Колодец.

Крепкий дом на бетонных сваях, обшит сайдингом, крыша металлочерепица.

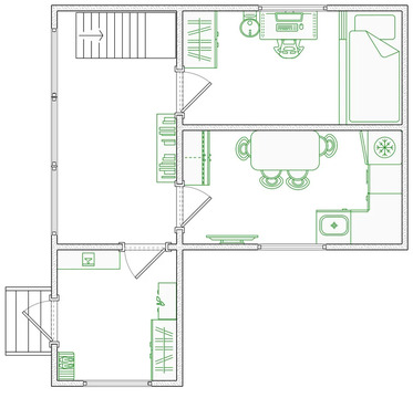
Уютный и ухоженный. С практичной планировкой: на первом этаже просторная прихожая,коридор, две изолированные комнаты.
На втором этаже одна большая комната.

Само СНТ очень уютное, окруженное лесом с множеством ягод и грибов.

На территории СНТ есть: продуктовый магазин, детская и спортивная площадки, стадион для игры в футбол, водоем для купания и рыбной ловли. В СНТ есть возможность подключить высокоскоростной интернет и телевидение. Все что нужно для качественного отдыха на природе, с сохранением всех благ цивилизации!

Транспортная доступность очень удобная.

До автобусной остановки 150м. Автобусы ходят от станции Власово, Савеловского направления, откуда удобно добираться до Москвы. На въезде в СНТ автоматические ворота, работающие по номеру телефона, видеонаблюдение и охрана.

Остались вопросы? Звоните! Показ в удобное для вас время.

За те же деньги

×