Развернуть карту

Цена: 6 799 000 руб. | 90 368 $ | 76 932 €

Автор: ФЛЭТ

+7 (843) 231-83-44

Изменено: 01 окт 2025, 06:37:18

Общие сведения:

Характеристики:

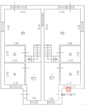
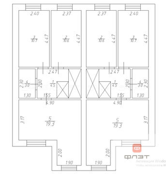
  • Общая площадь, м² 96.5
  • Водоснабжение центральное водоснабжение
  • Количество этажей 2

Продажа таунхауса, Лаишевский район, ул. Татьяны Лариной

Объект №112714 Ваша загородная мечта всего в 25 минутах от КазаниУютный таунхаус 96,5 м в живописном посёлке Урмай ждет своего нового хозяина!


Что вы получаете:


* Просторная площадь 96,5 м: Комфортное пространство для всей семьи, включающее 4 уютные комнаты, просторную кухню-студию с выходом на террасу и два санузла.
* Ухоженный участок 3,5 сотки: Место для отдыха, барбекю, детских игр.
* Предчистовая отделка: Все коммуникации разведены и подключены - сделайте ремонт по своему вкусу! А если хотите сэкономить время и силы, мы готовы довести дом до чистовой отделки под ключ (подробности уточняйте).
* Близость к природе: 10 минут до живописного берега Волги – идеальное место для прогулок и отдыха.
* Быстрый доступ к городу: Всего 25 минут до Казани – сочетание загородной жизни и городской инфраструктуры.


Не упустите свой шанс обрести загородный комфорт и уют!


Звоните прямо сейчас и узнайте подробности!

За те же деньги

×