Развернуть карту

Цена: 20 000 000 руб. | 246 153 $ | 214 422 €

Автор: ФЛЭТ

+7 (843) 231-83-44

Изменено: 01 окт 2025, 06:46:04

Общие сведения:

Характеристики:

  • Категория назначения землепользования ЗНП
  • Общая площадь, соток 8.5

Продажа участка, Казань, ул. Затлы

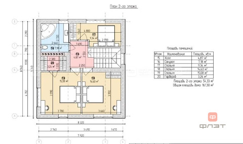
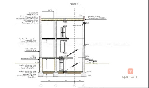
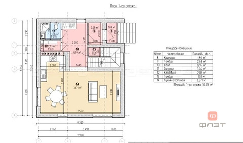
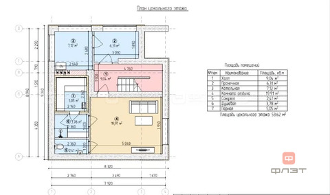
Объект №107597 Земельный участок в отличном месте!Продаётся земельный участок 8,5 соток с капитальным фундаментом с цокольным этажом в Приволжском районе на ул. Затлы, рядом с ул. Дубравная. Фундамент зарегистрирован, выполнена гидроизоляция, утеплен по периметру, подведены все централизованные коммуникации, имеется эскизный проект дома. Размеры фундамента 9х8м, Общая площадь цокольного этажа с учетом спланированных помещений 54м2. По проекту планировался 2-х этажный дом с цокольным этажом, общей площадью 161м2. Можно поднять одноэтажный дом. Один собственник, чистая продажа.

За те же деньги

×