Развернуть карту

Цена: 14 500 000 руб. | 178 461 $ | 155 456 €

Автор: Кальнинг Игорь Вячеславович

+7 (910) 484-30-18

Изменено: 01 окт 2025, 06:46:54

Общие сведения:

Характеристики:

  • Категория назначения землепользования ЗНП
  • Количество собственников 1
  • Общая площадь, соток 11.0
  • Расстояние до ближайшего населённого пункта, км 1
  • Ближайший населённый пункт Ликино
  • Расстояние до шоссе, км 1
  • Ближайшая железнодорожная станция Жаворонки
  • Расстояние до станции, км 3
  • Газоснабжение газопровод проходит по границе или по самому участку
  • Водоснабжение нелицензированная скважина
  • Канализация ценральная канализация
  • Собственник частное лицо

11 соток в Одинцовском районе 20 км от МКAД д. Ликино

Уникальный поселок (всего 14 домов), своя подъездная дорога, расположен в окружении леса, красивое место. Отличные соседи, поселок полностью застроен.
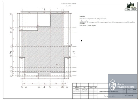
Участок ровный прямоугольной формы с удобным подъездом. На участке возведен качественный монолитный фундамент 16.9х13.1м. с заложенными коммуникациями (центральная канализация оплачена, вода – скважина, магистральный газ по границе участка), бытовка для рабочих, участок огорожен забором по периметру. Есть проект индивидуального загородного дома, общая площадь строения 254.1 кв.м.
Рядом с поселком находится вся необходимая для комфортного проживания инфраструктура. Муниципальные детский сад, школа в пешей доступности, рядом торговые центры, до ж/д станции Жаворонки 10 минут. Вся инфраструктура в пешей доступности.
Удобная транспортная доступность на машине по Минскому, Можайскому шоссе или скоростной платной дороге.
Категория земли: Земли населённых пунктов. Вид разрешённого строительства: Для индивидуального жилищного строительства. Кадастровый номер 50:20:0000000:306939.
Безопасная сделка. Один собственник, физ.лицо с 2019 года. Полная стоимость в договоре. Быстрый выход на сделку.

За те же деньги

×